Konz:
Konz * gepfl., frisch renov. Familienwohg. * 4 ZKB, Gäste-WC, Balkon & Garage ca. 120 moderne m² * ab 01.01.26
Objekt-Nr.: 2025-046

Frontansicht Haus mit oberem Balkon (rote Blumen)

seitlicher Blick auf Haus

Rückansicht mit Zufahrt

Zufahrt in Innen-Garagenbereich

Blick von Zufahrt in Innenbereich

Zugang Whg., gepfl. Treppenhaus

gr. offene Diele, Beispiel

Bsp. Flur/Diele Schlafräume

Bsp. Wohnen - Essen

Bsp. Kinderzimmer

Bsp. Kinderzimmer

Bsp. Anbauwand Küche plus AK

Balkon

Garagen/Parken

Bereich

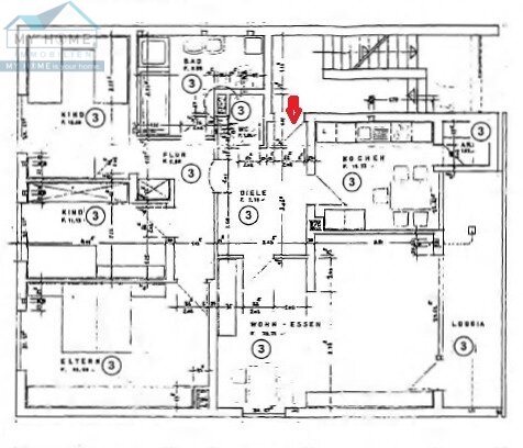
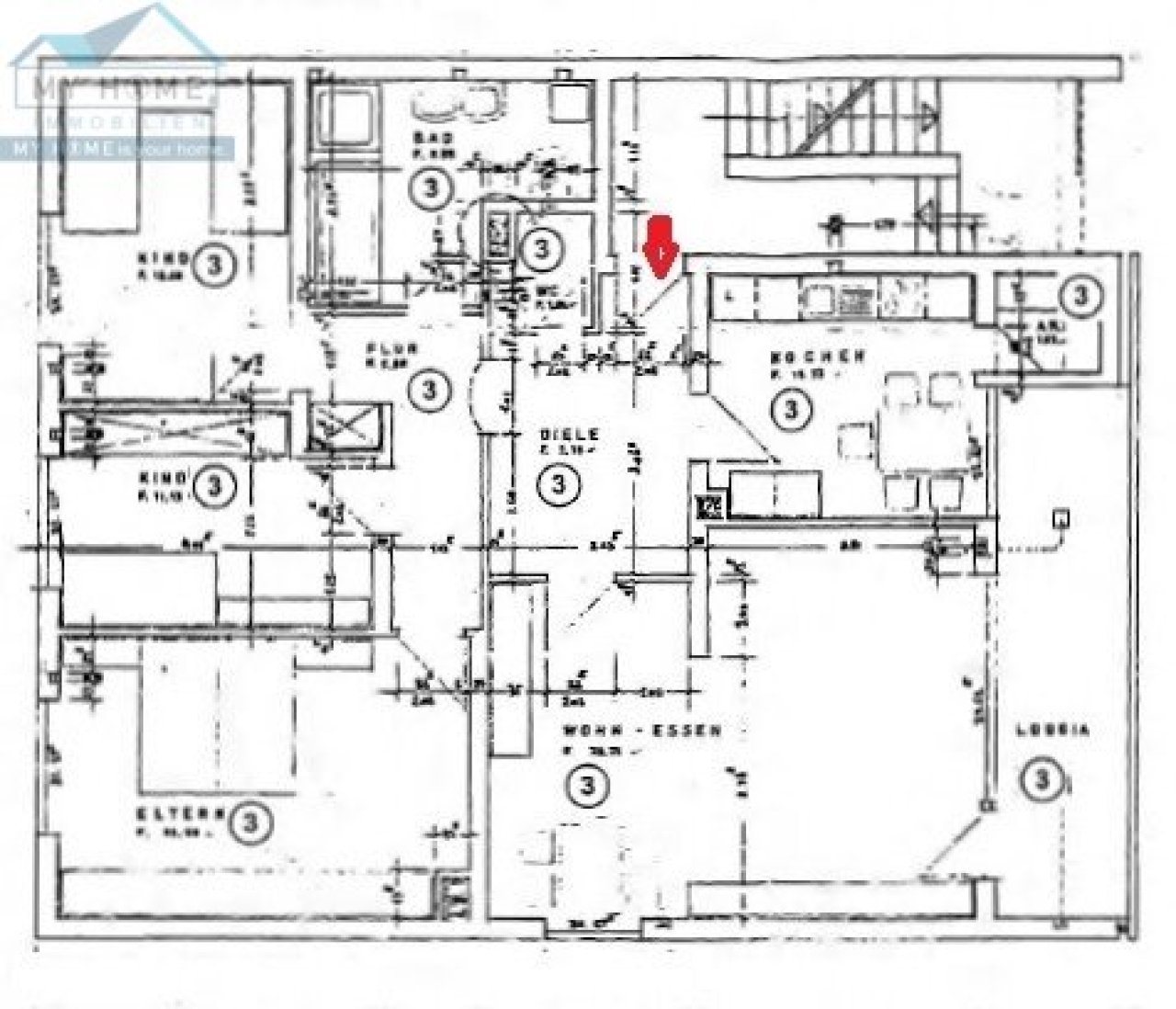
Bereich grundriss
















mtl. Kaltmiete:
1.240 €
Wohnfläche ca.:
120 m²
Zimmeranzahl:
4
My Home Immobilien GmbH offeriert Ihnen heute eine wunderschöne Balkonwohnung in einer ruhigen, beliebten Wohnlage von Konz-Karthaus.
Die Wohnung umfasst auf insgesamt ca. 120 modernen m² 4 Zimmer, Küche, Abstellraum, Bad mit Dusche. Badewanne und Fenster, Gäste-WC, Balkon, Garage (Aufpreis 60.00 Euro), Keller und gem. Waschraum.
Die Wohnung im 2. OG des ruhigen, gepflegten Wohnhauses wird derzeit aufwendig renoviert, saniert und modernisiert. Wände, Böden, Bäder erstrahlen bis zum Einzug in neuwertigem, hochwertigem "Outfit".
Im Rahmen einer persönlichen Besichtigung präsentieren wir Ihnen den Top Zustand der Wohnung aber auch gerne vor Ort!
Sie betreten die große, licht helle Wohnung in eine offene Diele, von der links die große Wohnküche und geradeaus das große Wohn-Esszimmer abgehen.
Vor dem Wohnzimmer befindet sich der ca. 10 m große Balkon, der an Sommerabenden zum Grillen & Chillen einlädt.
Die Diele mündet rechts in einen Flur, an dessen Enden sich einerseits das große moderne Bad mit Dusche, Wanne, Toilette und Waschbecken wie auch gegenüber das Gäste-WC befindet.
Vom Flur rechts gehen jeweils das große elterliche Schlafzimmer sowie die beiden Kinderzimmer (Büro, Gästezimmer, Ankleidezimmer etc.) ab.
Zur Wohnung gehören im Kellergeschoss sowohl ein eigener Kellerraum, ein gemeinschaftlich nutzbarer Wasch- und Trockenraum sowie unmittelbar am Haus eine eigene abschließbare Garage.
Wohnungstyp: Etagenwohnung
Etage: 2
Etagenanzahl: 3
Warmmiete inkl. NK: 1.440 €
Nebenkosten: 200 €
Kaution / Genossenschaftsanteile: 2480.00
Heizkosten: sind in den Nebenkosten enthalten
Provisionspflichtig: nein
Bad: Dusche, Wanne, Fenster
Anzahl Schlafzimmer: 3
Anzahl Badezimmer: 1
Balkon: 1
Gäste-WC: ja
Keller: ja
Umgebung: Apotheke, Bahnhof, Bus, Einkaufsmöglichkeit, Nähe Schnellstrasse, ruhige Gegend, Park
Anzahl der Parkflächen: 1 x Garage, pro Stück 60 €
Möbliert: nein
Haustiere: nach Vereinbarung
Ausblick: Fernblick
Letzte Modernisierung/ Sanierung: 2025
Qualität der Ausstattung: gehoben
Baujahr: 1981
Bezugsfrei ab: 01.01.2026
Bodenbelag: Fliesen, Laminat, Parkett
Zustand: Erstbezug nach Sanierung
Heizung: Zentralheizung
Befeuerungsart: Öl
Energieausweistyp: Verbrauchsausweis - gültig vom 24.10.2016 bis 23.10.2026
Energieeffizienz-Klasse: D
Baujahr laut Energieausweis: 2020
Die von uns gemachten Informationen beruhen auf Angaben der Vermieter. Für die Richtigkeit und Vollständigkeit der Angaben kann keine Gewähr bzw. Haftung übernommen werden.
Wir weisen auf unsere Allgemeinen Geschäftsbedingungen hin. Durch weitere Inanspruchnahme unserer Leistungen erklären Sie die Kenntnis und Ihr Einverständnis.

MY HOME IMMOBILIEN GmbH
Herr Bert Klockner
Maximineracht11c
54295 Trier
Telefon: +49 152 02893801
Fax: +49 651 9955913

