Trier:
ETW incl. Stellplatz * GELEGENHEIT! * 2 ZKB, Balkon, Keller * ca. 57 m²
Objekt-Nr.: 2025-036

Balkon und Rückansicht

kompl. Gebäudekomplex mit linkem Seiteneingang

linker Gebäudeteil incl. Parkplatz und Bushalt

Frontansicht seitl. Eingang

Balkone

Hauseingangstür

unteres Treppenhaus

Hochparterre, Treppe zum 1. OG

links Wohnungseingangstür Hochparterre

Wannenbad

komplett neuwertiger Design Vinyl Boden

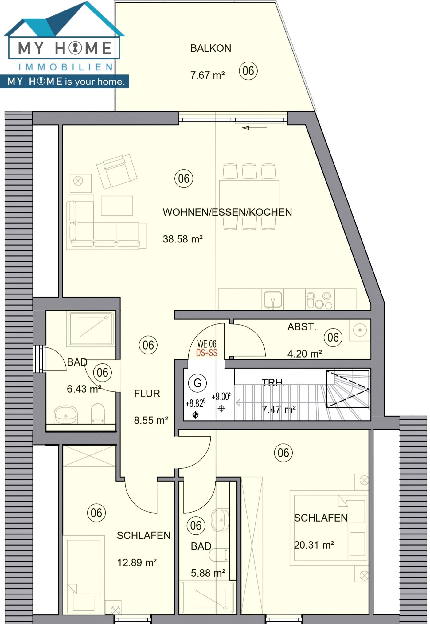
Grundriss rechte Wohneinheit

Einzelgrundriss

Stellplatz














Preis:
141.900 €
Wohnfläche ca.:
57 m²
Zimmeranzahl:
2
Rentable, ca. 57 m² große Wohnung - incl. Balkon und eigenem Stellplatz, kostensensible Elektro Radiatoren neuester Generation, Keller usw.
Sowohl für zukünftige Eigennutzer als auch gerade für Kapitalanleger geeignet! Vermietet mit derzeit gut 4 % Bruttorendite, kurzfristig steigerungsfähig auf ca. 5 %.
Über die gepflegte Außenanlage mit Ihrem eigenen Stellplatz betreten Sie links vom Hauptgebäude das Treppenhaus, welches Sie in das Hochparterre des Wohnhauses führt.
Die Wohnungseingangstür öffnet Ihnen den Zugang zur lichtdurchfluteten Wohnung, die Sie in der Diele betreten.…
Sowohl die Diele als auch die übrigen Räume außer Küche und Bad sind mit einem pflegeleichten Vinylboden ausgestattet.
Von der Diele aus finden Sie rechts die mit ca. 8 m² geräumige Küche und links ein Bad mit Wanne und Duschmöglichkeit.
Am Kopfende der Diele befindet sich rechts das ca. 17 m² große Wohnzimmer mit Zugang zum Sonnenbalkon und links ein über 18 m² großes, helles und ruhiges Schlafzimmer, beides mit Panoramablick auf Markusberg & Mariensäule.
Die Wohnung ist hinsichtlich Bad und Küche leicht renovierungsbedürftig, die derzeitige Miete kann sofort gemäß den gesetzl. Bestimmungen erhöht werden.
Hinsichtlich des leichten Renovierungsbedarfs wurde der Kaufpreis entsprechend nach unten angepasst!
Im Kaufpreis enthalten ist aber ein eigener Stellplatz direkt vor der Haustür und ein eigener großer, abschließbarer Kellerraum.
Gerne erläutern wir Ihnen im Rahmen Ihres persönlichen Besichtigungstermins die Zukunftsperspektive, die steigende Rendite sowie die notwendigen Renovierungen dieser Wohnung, sodass Sie sich ein umfassendes Bild machen können!
Eine prof. Hausverwaltung sorgt für einen reibungslosen Ablauf und eine verifizierbare Abrechnungsstruktur.
Alle Unterlagen mit den entsprechenden Informationen liegen vor und können im Rahmen eines Erstkontaktes eingesehen werden!
Sollte Sie unsere Beschreibung dieser Eigentumswohnung als Investor oder späterer Eigennutzer angesprochen haben, vereinbaren wir gerne einen Erstkontakt mit Ihnen!
Bert Klockner - Immobilienfachberater
info@myhome-trier.immo / +49.(0)152.02893801
Wohnungstyp: Erdgeschoss
Etagenanzahl: 2
Provisionspflichtig: ja
Provision: 3,57% des Kaufpreises (inkl. MwSt.)
Bad: Wanne
Anzahl Schlafzimmer: 1
Anzahl Badezimmer: 1
Balkon: 1
Keller: ja
Umgebung: Apotheke, Bahnhof, Bus, Einkaufsmöglichkeit, Grundschule, Kindergarten, Krankenhaus, Nähe Schnellstrasse, Park, Post, Wohngegend
Anzahl der Parkflächen: 1 x Außenstellplatz
Möbliert: nein
Qualität der Ausstattung: normal
Baujahr: 1972
Hausgeld: 164 €
Mieteinnahmen p.a.: 6.840 €
Bodenbelag: Fliesen, PVC
Zustand: renovierungsbedürftig
Heizung: Radiatoren
Befeuerungsart: Elektro
Energieausweistyp: Bedarfsausweis - gültig vom 04.12.2018 bis 03.12.2028
Energieeffizienz-Klasse: D
Baujahr laut Energieausweis: 2008
Bei Abschluss eines Kaufvertrages wird eine Vermittlungs-/ Nachweisprovision in Höhe von 3,57 % inklusive 19 % Mehrwertsteuer auf den Kaufpreis vom Käufer fällig.
Die von uns gemachten Informationen beruhen auf Angaben des Verkäufers bzw. der Verkäuferin. Für die Richtigkeit und Vollständigkeit der Angaben kann keine Gewähr bzw. Haftung übernommen werden. Ein Zwischenverkauf und Irrtümer sind vorbehalten.
Wir weisen auf unsere Allgemeinen Geschäftsbedingungen hin. Durch weitere Inanspruchnahme unserer Leistungen erklären Sie die Kenntnis und Ihr Einverständnis.
Das könnte Ihnen auch gefallen

MY HOME IMMOBILIEN GmbH
Herr Bert Klockner
Maximineracht11c
54295 Trier
Telefon: +49 152 02893801
Fax: +49 651 9955913
































































